ZEMO HOME d.o.o., Ulica kralja Tomislava 130, 48317 Legrad 1 60 60 11 035

D1

Kuća Arde D1 je poluodvojena kuća namijenjena za dvije obitelji. Ovaj tip je modernog dizajna, dizajniran za obitelj modernog životnog stila.

Prostire se na dva kata. U prizemlju se nalazi otvoreni dnevni boravak.

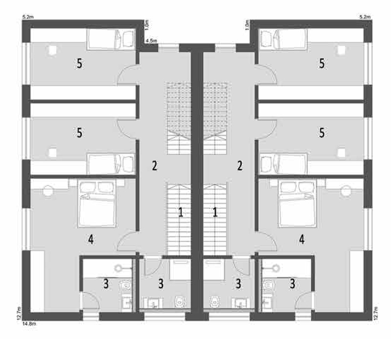
Na prvom katu nalazi se spavaći blok s tri spavaće sobe i dvije kupaonice. Na drugom katu nalazi se prostor za odmor i velika krovna terasa za ugodniji boravak i obiteljska druženja.

Table Header
Bruto površina prizemlja
180m2
Bruto površina prvog kata
183 m2
Bruto površina II kata
76 m2
Ukupna bruto površina objekta
439 m2
Površina terase
107 m2
Ukupna neto površina objekta
328 m2

Osnovni tlocrt prizemlja

Legenda

Osnovni nacrt prvog kata

Legenda

Osnovni tlocrt drugog kata

Legenda

ARDE D1

Fasade