ZEMO HOME d.o.o., Ulica kralja Tomislava 130, 48317 Legrad 1 60 60 11 035

K6

ARDE House K6 je obiteljski objekt modernog dizajna. Kuća je organizirana na tri kata, s dinamičnim formama i razigranim pročeljima. Veliki otvori na pročelju omogućuju ulazak velike količine svjetlosti u kuću, stvarajući ugodan boravak.

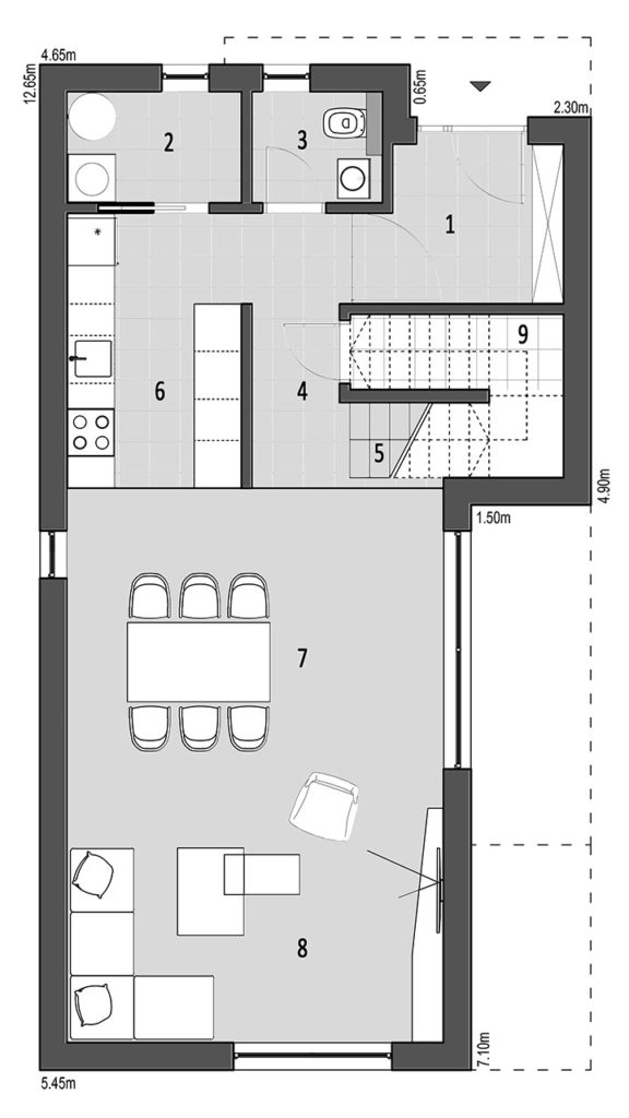
Dnevni boravak organiziran je u prizemlju, gdje su sve prostorije funkcionalno povezane, što daje mogućnost reorganizacije prostora prema potrebama korisnika.

Na 1. katu nalaze se dječje sobe sa zajedničkom kupaonicom i velikim terasama za šetnju.

Glavna soba s vlastitom kupaonicom i garderobom te radna soba nalaze se na drugom katu i predstavljaju jednu kompaktnu funkcionalnu cjelinu.

Kombinacija bijele fasade i kompaktnih panela u teksturi drva čini kuću vrlo atraktivnom i lako se uklapa u okoliš.

Table Header
Bruto površina prizemlja
75,50 m2
Bruto površina kata
69,70 m2
Bruto površina natkrivene garaže
69,70 m2
Bruto površina prohodne terase
12,50 m2
Ukupna bruto površina objekta
227,40 m2
Ukupna neto površina objekta
173,80 m2

Osnovni nacrt prizemlja

Legenda

Osnovni nacrt prvog kata

Legenda

Osnovni nacrt drugog kata

Legenda

ARDE K6