ZEMO HOME d.o.o., Ulica kralja Tomislava 130, 48317 Legrad 1 60 60 11 035

D2

Arde kuća D2 je poluodvojena kuća namijenjena za dvije obitelji. Ovaj tip ima tradicionalni dizajn, dizajniran za obitelj kojoj je potreban prostor i sloboda.

Prostire se na dvije etaže.

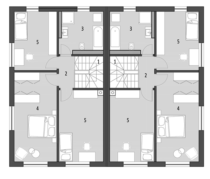
U prizemlju je predviđen dnevni boravak otvorenog tipa s blagovaonicom i kuhinjom, dok se pomoćna prostorija i WC nalaze u ulaznom dijelu. Na prvom katu nalazi se spavaći blok s tri spavaće sobe i jednom kupaonicom.

Table Header
Bruto površina prizemlja
160 m2
Bruto površina prvog kata
160 m2
Bruto površina potkrovlja
100 m2
Ukupna bruto površina objekta
420 m2
Ukupna neto površina objekta
314 m2

Osnovni tlocrt prizemlja

Legenda

Osnovni tlocrt prvog kata

Legenda

ARDE D2

Fasade