ZEMO HOME d.o.o., Ulica kralja Tomislava 130, 48317 Legrad 1 60 60 11 035

D3

Arde kuća D3 je tip dvojne kuće namijenjene za dvije obitelji. Prostire se na dva kata.

U prizemlju kuće nalazi se otvoreni prostor koji uključuje kuhinju, blagovaonicu, dnevni boravak, radnu sobu, WC, praonicu rublja i ulazni hodnik.

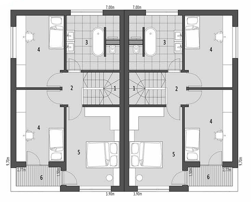
Na prvom katu nalazi se spavaći blok s tri spavaće sobe i kupaonicom. Dvije spavaće sobe imaju pristup s terase.

Table Header
Bruto površina prizemlja
156,80 m2
Bruto površina prvog kata
156,80 m2
Ukupna bruto površina objekta
313,60 m2
Ukupna neto površina objekta
222,86 m2

Osnovni tlocrt prizemlja

Legenda

Osnovni tlocrt prvog kata

Legenda

ARDE D3

Fasade