ZEMO HOME d.o.o., Ulica kralja Tomislava 130, 48317 Legrad 1 60 60 11 035

D4

Kuća Arde D4 je tip dvojne kuće s dva kata. U prizemlju se nalazi dnevni boravak, blagovaonica, kuhinja, WC, ostava i ulazni prostor.

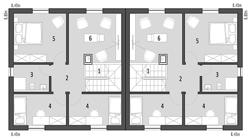
Na prvom katu nalazi se dnevni boravak, spavaći blok s tri spavaće sobe i kupaonica. Ovaj tip kuće namijenjen je obiteljima koje traže udobnost i privatnost.

Table Header
Bruto površina prizemlja
140,30 m2
Bruto površina prvog kata
148,70 m2
Ukupna bruto površina objekta
289 m2
Ukupna neto površina objekta
229,06 m2

Osnovni tlocrt prizemlja

Legenda

Osnovni tlocrt prvog kata

Legenda

ARDE D4

Fasade