ZEMO HOME d.o.o., Ulica kralja Tomislava 130, 48317 Legrad 1 60 60 11 035

K3

ARDE kuća K3 je dom za obitelj s djecom.

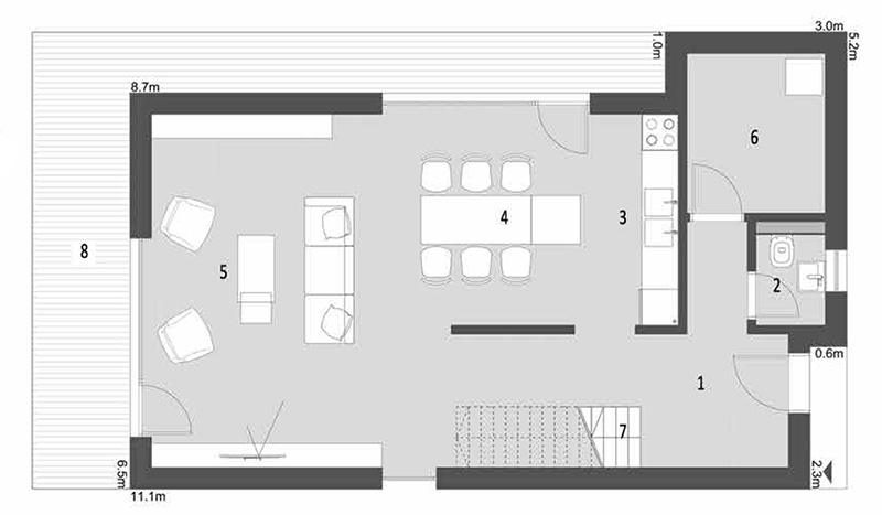
U prizemlju kuće nalazi se otvoreni prostor koji uključuje kuhinju, blagovaonicu, dnevni boravak i ulazni hodnik, što je pogodno za ljude koji vole prostrane, svijetle sobe.

Na katu se nalaze tri spavaće sobe s dvije kupaonice, od kojih se u jednu ulazi iz glavne spavaće sobe.

Ovakav tip kuće namijenjen je obiteljima koje žele privatnost s naglaskom na panoramskim zidovima.

Table Header
Bruto površina prizemlja
102,20m2
Bruto površina kata
92,50 m2
Ukupna bruto površina objekta
194,70 m2
Ukupna neto površina objekta
135 m2

Osnovni nacrt prizemlja

Legenda

Osnovni nacrt prvog kata

Legenda

ARDE K3

Fasade